Properties

Comm Industrial For Sale For Sale

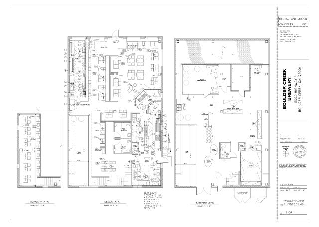
5,200 Sqft - 13040 Highway 9, BOULDER CREEK, California 95006

QR Code
Property Description

Previous Boulder Creek Brewery location. Existing building extensively damaged in fire. Exterior shell with expired repair building permit. Plans/Design available. No part of previous business included in purchase. Alternate septic in place suitable for previous usage.

Basic Details
Property Type : Comm Industrial For Sale
Listing Type : For Sale
Listing ID : 40962257
Price : $295,000
Bedrooms : 0
Bathrooms : 0
Half Bathrooms : 0
Square Footage : 5,200 Sqft
Year Built : 1931
Lot Area : 7,144 Sqft
Features
Heating System : No Heat
Address Map
Country : US
State : CA
County : Santa Cruz
City : BOULDER CREEK
Zipcode : 95006
Street : Highway 9
Street Number : 13040
Floor Number : 0
Longitude : W123° 52' 43.6''
Latitude : N37° 7' 23.8''
MLS Addon
Office Name : Sentry Residential
Area : Boulder Creek
Address : 13040 Highway 9
Cross Street : E Lomond St
LA1User Code : MLL5077363
LA1Agent First Name : Paul
LA1Agent Last Name : Lazaga
Status Category : Sold
Tot # Parking Spaces : 5
Zoning : C-4
List $/SqFt : $41
Age : 88
Apx Lot Sq Ft : 0 Sqft
Annual Taxes : $2,359
Total Deposits : $0
Bus Sq Ft of Bldg : 0 Sqft
TENANT EXPENSE : Other
Other Loans (Y/N) : No
1st Loan Balance : $0
2nd Loan Balance : $0
Tot Other Loans : $0
Financial Data Verif(Y/N) : 4.3%
Ann Act Gross Inc : $0
Gross Oper Actual Inc : $0
Listing Type : Excl Right
Listing Service : Full Service
Special Information : None
Original Price : $450,000
Sold Price : $295,000
Previous Price : $0
Sale $/SqFt : $0
Comm Industrial For Sale For Sale
  • Listing ID : 40962257
  • Bedrooms : 0
  • Bathrooms : 0
  • Square Footage : 5,200 Sqft
$295,000
Agent info
Contact Agent