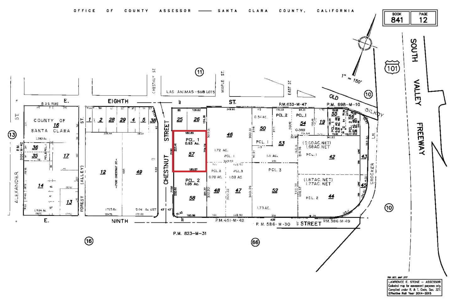
Properties Pictures Google Map Comm Lots And Land For Sale0 Sqft - 7150 Chestnut Street, GILROY, California 95020 Property Description Zoned for Commercial & Industrial uses. Improved, rare small lot just under 1 Acre. Great access & proximity to Hwy 101 & 152. Basic Details Property Type : Comm Lots And LandListing Type : For SaleListing ID : 40962063Price : $750,000Bedrooms : 0Bathrooms : 0Half Bathrooms : 0Square Footage : 0 SqftYear Built : 0Lot Area : 40,510 Sqft Address Map Country : USState : CACounty : Santa ClaraCity : GILROYZipcode : 95020Street : Chestnut StreetStreet Number : 7150Floor Number : 0Longitude : W122° 26' 19.1'' Latitude : N37° 0' 15.9'' MLS Addon Office Name : Renz & RenzBuilding Type : Comm Lots And LandArea : All Other Counties/StatesAddress : 7150 Chestnut StreetLA1User Code : MLL158175LA1Agent First Name : GeorgeLA1Agent Last Name : RenzStatus Category : SoldZoning : CMList $/SqFt : $0Apx Lot Sq Ft : 0 SqftAnnual Taxes : $0Total Deposits : $0Bus Sq Ft of Bldg : 0 Sqft1st Loan Balance : $02nd Loan Balance : $0Tot Other Loans : $0Ann Act Gross Inc : $0Gross Oper Actual Inc : $0Listing Type : Excl RightListing Service : Full ServiceOriginal Price : $750,000Sold Price : $725,000Previous Price : $0Assessors Parcel No : 841-12-057Assessments : NoSurveyed : NoPaid By : BuyerSale $/SqFt : $0 Comm Lots And Land For Sale Listing ID : 40962063 Bedrooms : 0 Bathrooms : 0 Square Footage : 0 Sqft $750,000 Share on Facebook PDF Add to favorites Remove from favorites Send to Friend Request a Visit Agent info Contact Agent