Properties

Lots And Land For Sale

0 Sqft - 226 Avenue Cabrillo, EL GRANADA, California 94018

QR Code
Property Description

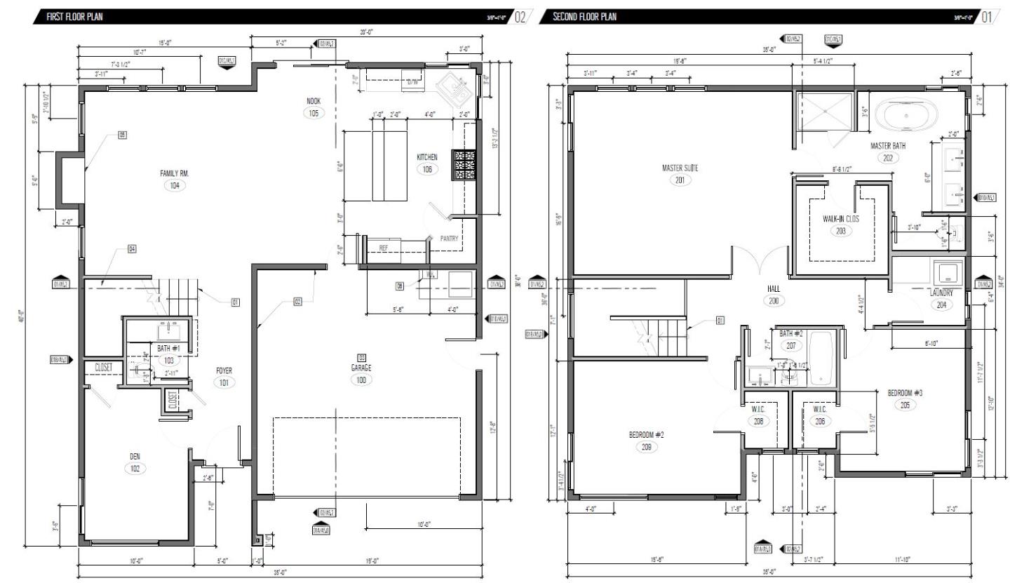
Buy and build NOW! 5,000+/- sq ft level lot comes with approved plans for a stunning, contemporary 3 bed / 2.5 bath, 2,092+/- sq ft home with views of the ocean from the upper level. The lower level includes an open-concept family room, kitchen, and den, along with 2-car garage. The upper level has a master suite, plus two bedrooms, a full bathroom and laundry room. Landscape and irrigation plans are also included. This is a chance to customize your Coastal dream home in desirable lower El Granada. Situated a short distance from Surfer’s Beach, local schools, artisanal eateries, groceries, parks and lively Pillar Point Harbor – with acclaimed restaurants, shops, kayaking, paddle-boarding & boating. Enjoy the best of the Coast while within an easy commute to SF, the Peninsula & downtown Half Moon Bay. Neighboring parcel also available, buy both for the rare chance to build your own family compound.

Basic Details
Property Type : Lots And Land
Listing Type : For Sale
Listing ID : 40961952
Price : $590,000
Bedrooms : 0
Bathrooms : 0
Half Bathrooms : 0
Square Footage : 0 Sqft
Year Built : 0
Lot Area : 5,000 Sqft
Address Map
Country : US
State : CA
County : San Mateo
City : EL GRANADA
Zipcode : 94018
Street : Avenue Cabrillo
Street Number : 226
Floor Number : 0
Longitude : W123° 31' 47.6''
Latitude : N37° 30' 6.5''
MLS Addon
Office Name : KW Peninsula Estates
Building Type : Lots And Land
Area : All Other Counties/States
Address : 226 Avenue Cabrillo
Cross Street : The Alameda
LA1User Code : MLL5068549
LA1Agent Last Name : Juliette Kulda Group
Status Category : Sold
Zoning : R1-S
List $/SqFt : $0
Apx Lot Sq Ft : 0 Sqft
Annual Taxes : $0
Total Deposits : $0
LOT DESCRIPTION : Fenced, Mostly Level
WATER/SEWER : Water - Public, Sewer System - Public
Bus Sq Ft of Bldg : 0 Sqft
1st Loan Balance : $0
2nd Loan Balance : $0
Tot Other Loans : $0
Ann Act Gross Inc : $0
Gross Oper Actual Inc : $0
Special Information : None
Original Price : $590,000
Sold Price : $545,000
Previous Price : $0
Sale $/SqFt : $0
Lots And Land For Sale
  • Listing ID : 40961952
  • Bedrooms : 0
  • Bathrooms : 0
  • Square Footage : 0 Sqft
$590,000
Agent info
Contact Agent